La Maison Verte - Relogement des services de l'environnement de l'Etat de Genève

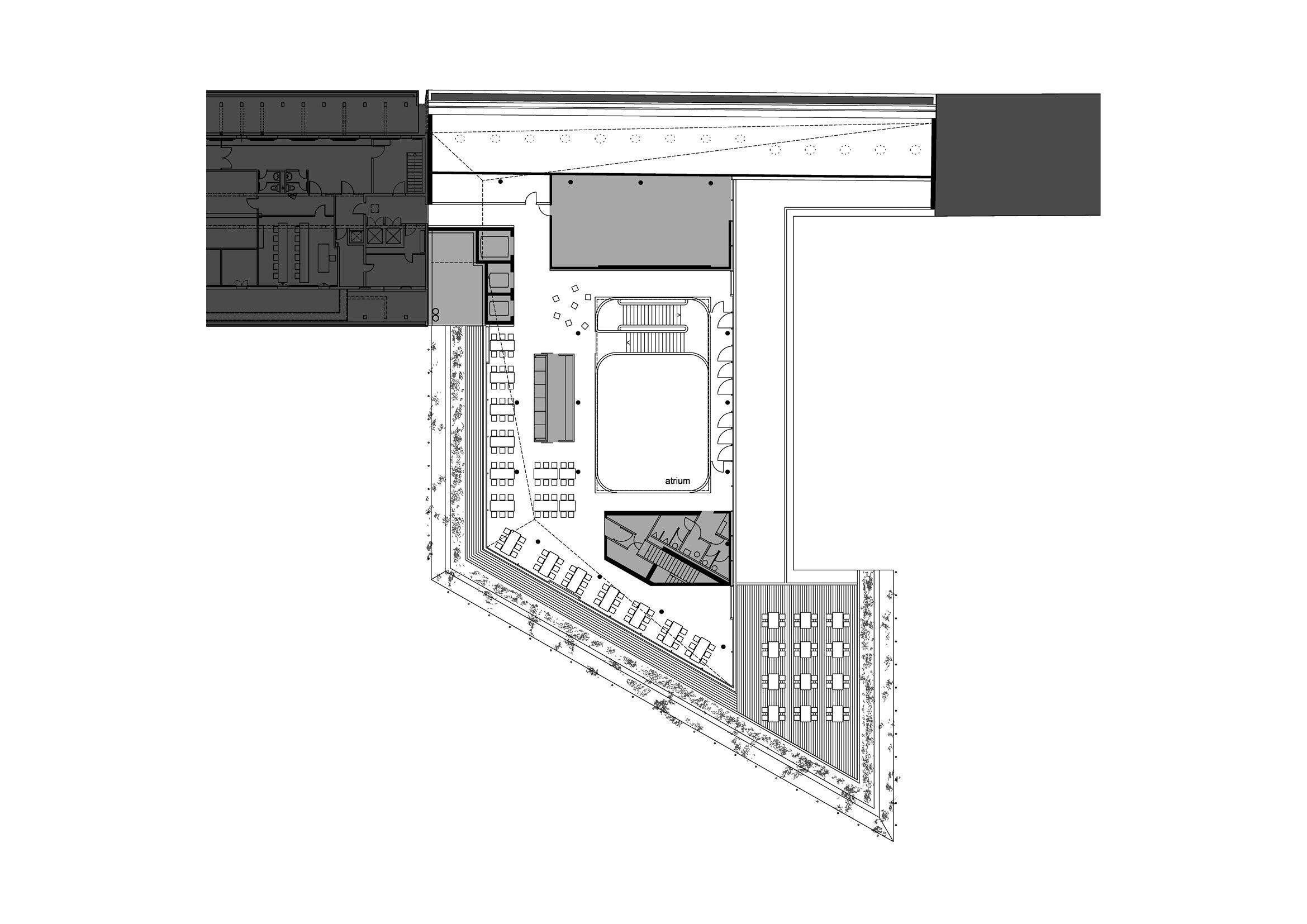
Le bâtiment, situé au 76, route des Acacias abrite les services de l'Environnement de l’État de Genève sous un même toit dans le but d’intensifier et de favoriser les synergies entre leurs activités. Un tel bâtiment permettra de rendre plus lisible l'action des services œuvrant pour le développement durable. L’implantation du projet cherche la plus grande continuité possible avec les éléments du contexte, affirmant le choix d’une réparation de la friche.
Le bâtiment réagit donc aux conditions locales du site. Son enveloppe extérieure est formée de quatre parties distinctes qui s’adaptent respectivement à leur environnement proche. Au nord-ouest des allèges absorbantes répondent au caractère bruyant de la route des Acacias. À l’est, une cour vitrée réagit aux géométries d’un immeuble de logement mitoyen. Au sud, une façade à coursives donne sur une cour. Depuis ces coursives formant une protection solaire passive se développe un biotope vertical à feuilles caduques en phase avec les cycles naturels des saisons. Il pousse sur une treille métallique, formée par une maille de câbles, légèrement distancée des coursives. En été, cette végétation protège la façade d’apports solaires excessifs. En hiver, une fois les feuilles tombées, la façade peut profiter des gains solaires et d’un apport de lumière optimal. La toiture fonctionne comme un grand capteur d’eau de pluie qui alimente une citerne de récupération. La volumétrie du toit à pans permet une récupération optimale thématise le gabarit légal à disposition. La toiture est percée par la verrière de l’atrium qui contient des cellules photovoltaïques visibles depuis l’intérieur.
Les notions de développement durable sont intégrées en amont du projet. Les matériaux sont choisis en fonction de critères liés à l’énergie grise et pour appuyer la conception d’un environnement propice au bien-être et respectueux de la santé avec notamment des cloisons intérieures réalisées en briques de terre crue.










INFOS
Maison La Tourelle
