Le Verger de Bonvent

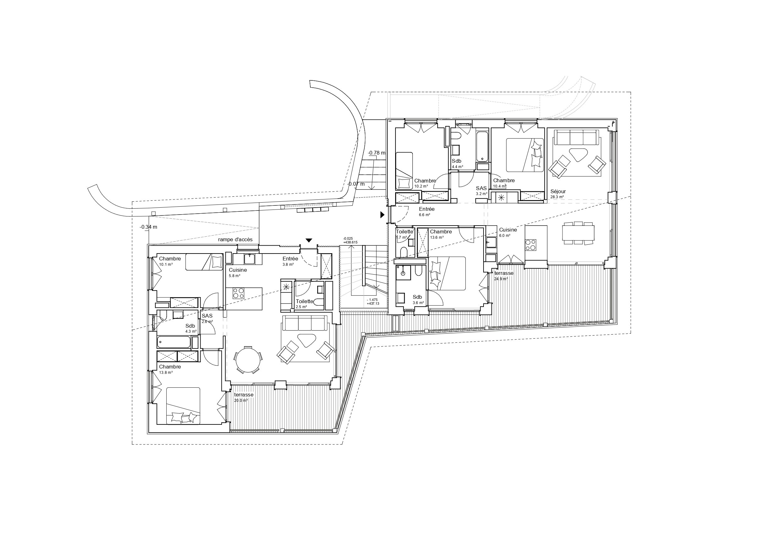
La nouvelle volumétrie bâtie s’ancre symboliquement à l’emplacement de l’ancienne maison existante et s’étire dans la profondeur de la parcelle. Dans l’optique d’offrir la plus grande surface de jardin au sud, le volume s’adosse au chemin de la Charrue en un jeu de décalage. La volumétrie est scindée en deux entités bâties, dont l’intervalle offre une perméabilité visuelle entre les deux espaces majeurs, et permet d’accueillir l’escalier de distribution principal.
Côté jardin, le jeu de décalage des volumes produit naturellement une variété de vues sur le jardin et sur le paysage lointain du parc des Marais. Il permet en outre de régler les questions de vues entre voisins et d’intimité entre les appartements. Côté cour, les appartements sont distribués par des coursives extérieures. Ce dispositif se répète côté jardin, afin d’offrir des terrasses généreuses et des balcons filants. Ces éléments permettent d’unifier les volumes habités entre eux. Par ailleurs, la mise en œuvre d’une toiture unique, à la géométrie douce et généreuse, vient recouvrir l’ensemble des espaces intérieurs et extérieurs, afin d’unifier l’ensemble en un tout cohérent.










INFOS
Bird
